Boutique Paris 3
Höhepunkte
Einzugsbereit
Erhältlich mit Design, Möbeln und EinrichtungsgegenständenVon 1 Tagen
Flexible Buchungsspanne in diesem Bereich42 m2
Mittlere Größe für dieses GebietBoutique
Typische Ladengestaltung für diesen BereichÜber diesen Raum
Boutique située dans le quartier du haut marais, Paris 3, à disposition pour tous types d'événements, expositions, pop-up, showroom ou Fashion Week. Si vous chercher et/ou souhaitez louer notre jolie boutique/bureau, que ce soit à la journée, à la semaine ou au mois. Disponibilité et prix changeant en fonction de la saison (FASHION WEEK PRIX : 10 800€ HT-FAI)
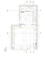
La boutique fait 42m2 en RdC sur RUE, Hauteur sous plafond de 2m75 avec :
- une VITRINE de 5m sur 2m15
- porte vitrée avec un système d'alarme antivol pour vêtements + bip
- un volet roulant métallique intérieur
Un espace CLIENT de 26 m2 avec :
- 7m linéaire de portants
- 3 miroirs toute hauteur
- une cabine d'essayage à rideau
Un espace BUREAU de 9.15 m2 avec :
- un bureau de 2m x 0,8
- un meuble de rangement dossiers en bois sur mesure
- un meuble penderie en bois de bouleau avec 8.55m linéaire de tringle
- une cabine d'essayage
Espace fermé avec des toilettes + rangements
et un petit espace avec mini frigo, micro-ondes, rangement épicerie et penderie.
L’internet avec Fibre
Öffnungszeit
- Montag - Freitag
- –
- Samstag
- –
- Sonntag
- –
Annehmlichkeiten
- Ganzes
- Beleuchtung
- Raum teilen
- Wc
- Behindertengerecht
- Mehrere Eingänge
- Sauberer Boden
- Saubere Wände
- Gut gemalt
- Gut platzierte Steckdosen
- Umkleideraum
- Schaufenster
- Personalraum
- Personal Getrennter Eingang
- Personaltoilette
- Badezimmer
- Möbel
- Garderobenständer
- Heizung
- Regale
Machen Sie den Raum zu Ihrem
Design eines Markengeschäfts
Unsere Experten schlagen Ihnen Möbel und Designideen vor, die Ihr Kundenerlebnis verbessern werden.Möbel mieten
Mieten Sie genau die Möbel, die auf Ihrem Moodboard zu sehen sind, direkt bei uns - ganz ohne Aufwand!Daten und Analytik
Messen Sie Ihren Erfolg mit unseren Daten, und verstehen Sie ihn mit unseren einfachen Analysen.Stellenbesetzung
Wir besorgen Ihnen das Personal, das Sie brauchen, und Sie brauchen nur ein paar Tasten zu drücken.Verkaufsstelle
Wir sorgen dafür, dass Sie alle gängigen Kreditkarten akzeptieren können, um einen reibungslosen Ablauf zu gewährleisten.Influencer-Marketing
Sorgen Sie mit unseren brillanten, zielgerichteten Influencer-Marketing-Strategien dafür, dass Ihre Marke bekannt wird.Pop-ups leicht gemacht: Entdecken Sie unsere Möbel auf Abruf
Fordern Sie das komplette Paket über xNomad an und erhalten Sie einen exklusiven Preisnachlass auf Ausstellungsregale, Regale und Möbel.

Standort
Sie können den perfekten Ort nicht finden?











