Boutique Shop for Rent - Cluny La Sorbonne
France, ParisPoints forts
Prêt à l'emploi
Disponible avec design, mobilier et agencementDepuis 365 jours
Réservation flexible189 m2
Superficie moyenne pour cette régionBoutique
magasin typique de cette zoneÀ propos de cet espace
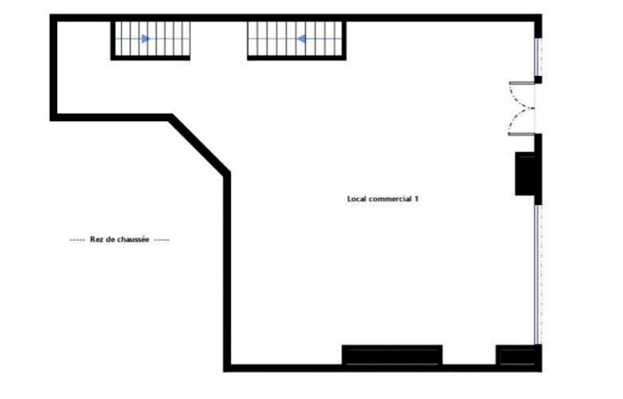
Boutique Shop for Rent - Cluny La Sorbonne Total Size: 189 sqm Ground Floor: 63 sqm Entresol: 63 sqm Basement: 63 sqm
Équipements
Type d'emplacement
- Rez-de-chaussée - Rue
À propos de l'espace
- Toilettes
Support retail
- Vitrine
S'approprier l'espace
Grâce à nos services complémentaires, votre espace est prêt à l'emploi : mobilier, image de marque, personnel, marketing... Nous nous occupons de tout.
Conception de magasins personnalisée
Nos experts vous proposeront des idées d'aménagement et de design pour améliorer l'expérience client.Location de mobilier
Louez directement chez nous le mobilier de votre moodboard personnalisé, sans tracas !Données & analyses
Mesurez et comprenez votre succès grâce à nos données et analyses simplifiées.Personnel
Nous vous fournissons le personnel nécessaire en quelques clics.Point de vente
Acceptez toutes les principales cartes de crédit pour une expérience fluide.Marketing d'influence
Assurez la visibilité de votre marque grâce à nos stratégies de marketing d'influence ciblées.Emplacement
Vous ne trouvez pas l'espace idéal ?

Emelie JohanssonExperte retail à Paris





