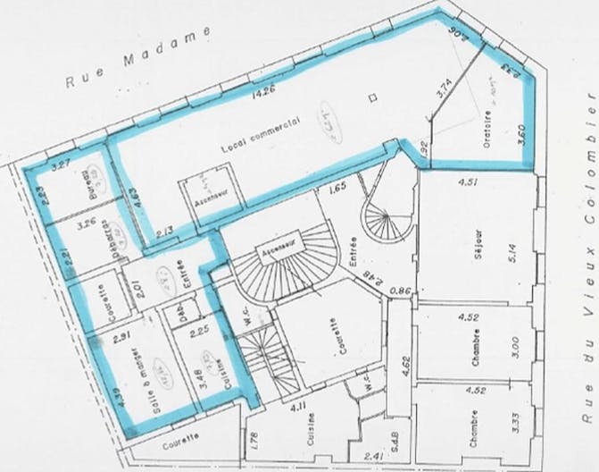
Corner Boutique - Prime Location - Saint-Sulpice
France, ParisPoints forts
Prêt à l'emploi
Disponible avec design, mobilier et agencementDepuis 365 jours
Réservation flexible279 m2
Superficie moyenne pour cette régionBoutique
magasin typique de cette zoneÀ propos de cet espace
Corner Boutique - Prime Location - Saint-Sulpice Total Size: 279 sqm Ground Floor: 82 sqm (Sales Area) 1st Floor: 119 sqm (Sales Area) Basement: 78 sqm (Storage)
Équipements
Type d'emplacement
- Rez-de-chaussée - Rue
À propos de l'espace
- Toilettes
Accessibilité
- Entrées multiples
Support retail
- Cabine d'essayage
- Réserve
- Vitrine
S'approprier l'espace
Grâce à nos services complémentaires, votre espace est prêt à l'emploi : mobilier, image de marque, personnel, marketing... Nous nous occupons de tout.
Conception de magasins personnalisée
Nos experts vous proposeront des idées d'aménagement et de design pour améliorer l'expérience client.Location de mobilier
Louez directement chez nous le mobilier de votre moodboard personnalisé, sans tracas !Données & analyses
Mesurez et comprenez votre succès grâce à nos données et analyses simplifiées.Personnel
Nous vous fournissons le personnel nécessaire en quelques clics.Point de vente
Acceptez toutes les principales cartes de crédit pour une expérience fluide.Marketing d'influence
Assurez la visibilité de votre marque grâce à nos stratégies de marketing d'influence ciblées.Emplacement
Vous ne trouvez pas l'espace idéal ?

Emelie JohanssonExperte retail à Paris










